Animated GIF from 1929
Real life has been interfering with important historical research. This must stop! Despite a busy day at work, I will bring history forward! Or something like that.
Anyway, we’ve all seen the majestic glory of Old SF, who have revealed the secret history of the SFPL’s most excellent (though unfortunately lowish-resolution) photo archive. I can’t tell you how happy I am that they took the time to geotag things. It certainly makes my time-wasting more efficient. (Hey, OldSFians, ping me, we need to talk about integrating the Sanborn maps!)
Geotagging these resources is but the first step. There’s also the efforts of Historypin (who recently grabbed Jon Voss, of LookBackMaps fame) where we align photos and tag more information about them. (I cannot wait until we get a geohistory API…)
Anyway, many of you have probably seen the series of photos from the corner of 24th and Valencia from 1929. This one looks east down 24th towards Potrero, standing next to Papalote. The building on the right (SW corner) and one across the street on the left (NE corner) are still there.
Hey, ice cream! And we sure could use a deli on that corner again. Strangely enough, that’s a gas station across the street (where the church is now), and the Fiesta ice cream building will eventually flip to a gas station.
Another view looking south towards Bernal where you can see a lumberyard and a proto-fixie.
(If anyone wants to load these in historypin and do the before/after Google Street View thing, go for it, I’m so out of time it’s absurd.)
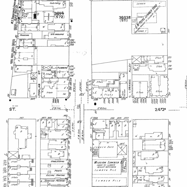
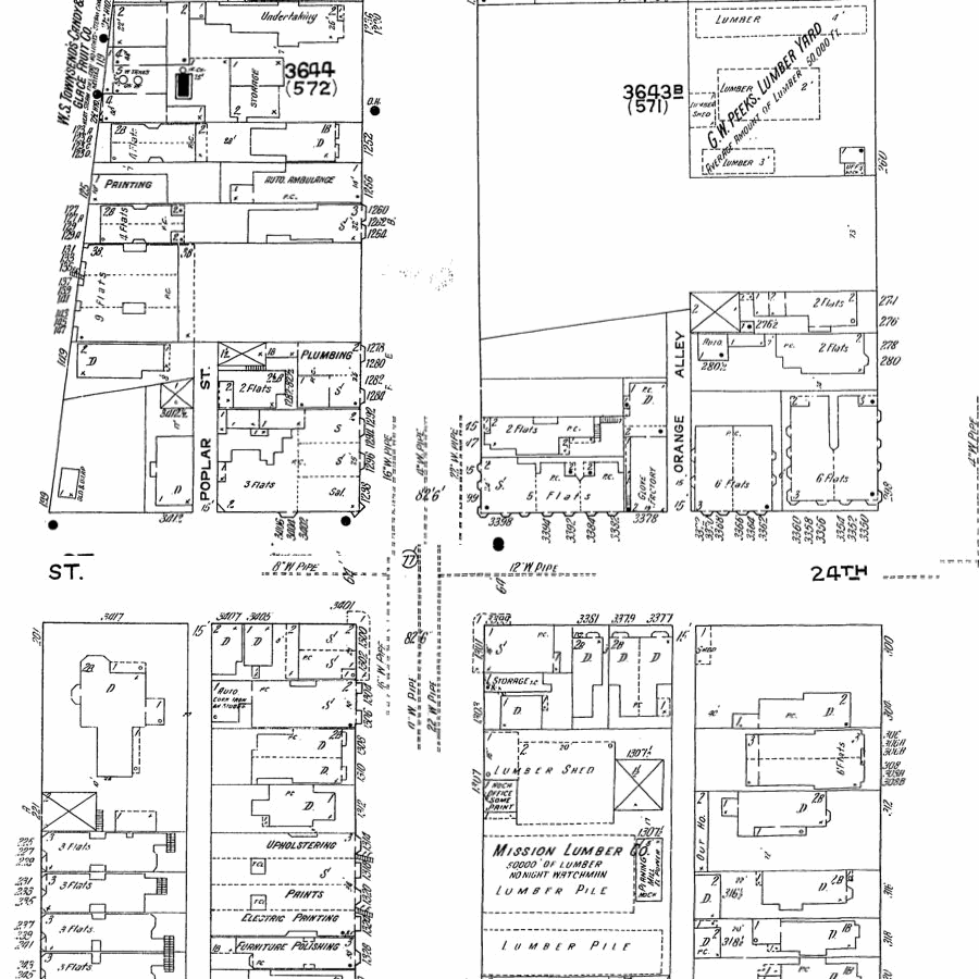
The Sanborn maps for this intersection are particular pain in the ass to put together — basically four different maps in two different volumes. But such is my love for you all and of history.
Anyway, here’s 1915 vs 1950 side by side. Goodbye lumberyards and the candy factory and light industry and the train station (which is a post in itself). (Click to make bigger.)
(I also did a quick and dirty map of that corner in 1899 for the 200 Yards project a while back.)
Zooming in 24th and Valencia, here’s 1915 vs 1950 in an animated GIF with a 35 year delta. The two photos were taken on the left looking right (east looking west), and top looking down (north looking south) respectively.
Click on it if nothing’s happening, or to get a wider version.
Given the title of the post, you can probably figure out where I’m going next. The interesting thing about the 1929 photo is there are actually TWO of them, taken less than a minute apart. It’s as if the photographer knew that we would use a format invented in 1987 to animate his 82 year old images! The detail in any one of these photos is impressive, but the animation below makes it that much more real.
(Click for a 1000 pixel wide version).
Note the kids hamming it up. They’re in their 90s now.
And check out the streetcar under the Fiesta Ice Cream sign! I never noticed it until I made this animation.
Anyway, enjoy the mildly coherent historic discourse and retina jarring animated GIFs.















Very cool!
the photographer was bracketing (different shutter speeds)
how fortuitous!!
Cool, that makes sense — I noticed a lot of near-doubles and could never figure out why. (Imagine explaining HDR to those guys?)
Interesting. Hey — I notice that the O.K. stables in the 1919 Sanborn map turns into an auto repair shop in the 1950 map. Do you think that’s common? I always see old auto repair shops that I swear look like they were built to be a stable with a hay loft.
Good eye. Seems likely — in the 1920s, the horse/stable industry down in La Lengua seemed to jump wholesale to cars.
Yeah, that was actually something really common. If you look through the city directories for the first few decades of the 20th c. you can see it happening again and again, where stables were converted to auto repair shops and the like.
A few years back I did a paper in on a beautiful surviving example in the Western Addition (1336 Grove St).
What’s up with the man on his knees hamming it up with the kids? Praying for a future Papalote perhaps?
Look at all the parking!
@Professor Deth Vegetable —the one with the horse head jutting out from its gable? Was that paper ever published? I’ve talked with a number of the local auto garages about the carriage house origins of their buildings, and would love to read that!
There was a candy factory on the corner of Devisadero [sic] and Oak St. back then, as well. (Where Vinyl cafe is now)