La Rondalla, Reboundar?
Jeff Hunt of Muni Diaries send us this intriguing shot of actual renovation at La Rondalla, taken last night:
Earlier in the day, our new “Plywood Diaries” reporter had observed that construction workers had removed an entire window, noting that “in broken English, they said that the same restaurant is coming back.”
Our Valencia St agent remarks: “I only hope they also renovate the food quality”.
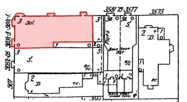
Oh, and 901 Valencia used to be a saloon.
(1899 Sanborn map — 20th on the top, Valencia on the left, Lexington on the right.)
And because you know I am going to look up what it was… From the 1898 city directory:
“Hark, Gertrude! Let us acquire beverages!”
“But dearest Wilbur, I really do feel like consuming raw mollusks.”
“Well, let us do both at Mr Lauterwasser’s Liquor and Oyster Emporium on 20th and Valencia!”
Sometime after 1904, In 1909, the bar was taken over by Frank Lemoine.
And then John and Katherine Hill:
Prohibition turned it into a soda fountain run by H.I. Buckman, as we see in the 1927 city directory.
By 1938, it was home to the “Uneeda Coffee” Shop.
(It is good to see that horrid coffee puns know no historical limits.)


















Rock on, La Rondalla!
I live right up the hill, and used to get drawn in for ‘a quick one’ when returning a video to Lost Weekend – after 2 or 3 Don Julio’s, I’d be on my way back home, but it was generally a different me.
I’ve quit drinking since they closed, but still look forward to having them back on the block.
NO NO NO NO NO NO NONONONONOOOOO. I went to too many miserable birthday parties there– every one a disaster, with rotten food that smelled of ammonia and tequila that smelled of wood alcohol.
La Rondalla was filthy and nasty and deserves to stay dead.
From:
http://blogs.sfweekly.com/thesnitch/2007/07/proof_that_hipsters_will_eat_a.php
Major Violations
1. Certain food that is not hot enough or cold enough.
2. Food contains possibly harmful impurities.
3. Severe cockroaches.
Everything used to be a saloon. By my calculations, 4 out of every 5 structures in San Francisco in 1900 was a saloon. And by “my calculations” I mean “total guess based on watching Deadwood.”
The Uneeda Coffee thing is funny, too. I thought the Principled Grounds/Hey Joe!/Phi Beta Cuppa thing was a recent and unhappy development.
I hope someone brings back the Uneeda Coffee Shop, even if it’s only a drag name.